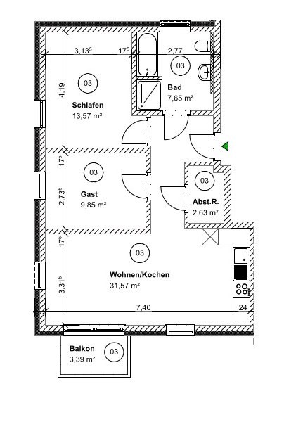
Wohnung 3, 1.OG rechts

Verkaufspreis: 298.950 Euro
Stellplatz: 12.000 Euro
Zustand: Frei



66,96 m² Wohnfläche gesamt
---------------------------------------------
7,65 m² Bad
---------------------------------------------
13,57 m² Schlafen
---------------------------------------------
2,63 m² Abstellraum
---------------------------------------------
9,85 m² Gästezimmer
---------------------------------------------
31,57 m² Wohnen/Küche
---------------------------------------------
3,39 m² Grundfläche Balkon
---------------------------------------------
Stellplatz 3 (überdacht)